Impressionen
Briefing und Entwurf
- Präsentation von 2 Marken auf einem Stand: Ergobaby und Tula – Aufteilung 60/40
- Motto der Gestaltung „Two brands – one mission“
- Ergobaby soll nicht mehr so „clean“ präsentiert werden
- Tula nicht mehr nur im „Öko-Style“
- Produktpräsentation: die meisten Exponate müssen doppelt ausgestellt werden
- 1 geschlossener Meetingraum und 1 offene Lounge für jeweils 10 Personen
- Standfläche im Inneren als offene Meetingzone
- großer Bewirtungstresen für Snacks und Kaffee-Service, auch zur Standparty nutzbar
- Küche und Lagerraum
- Bereich als „Stillecke“
- Bauhöhe nur 4 m, dennoch Fernwirkung zeigen
Konzeption und Formgebung
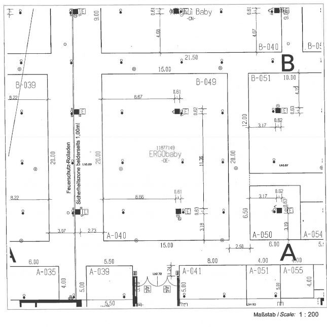
Im Jahr 2017 ging unser Kunde Ergobaby mit uns auf die Messe „Kind + Jugend“. Ergobaby wollte zusammen mit der Firma Tula einen Stand unter dem Motto: „two brands – one mission“. Passend zu diesem Motto entwickelte BLICKFANG einen anthrazitfarbenen Inselstand mit Holzelementen. Dadurch lag der Fokus perfekt auf den ausgestellten Artikeln. Durch dieses schlichte und elegante Design wurde dem vorherrschendem Image, dass Ergobaby zu clean sei und Tula zu alternativ sei, entgegengewirkt. Der Stand selber hatte sowohl einen geschlossenen Meeting-Raum als auch eine offene Lounge, in welchen jeweils bis zu 10 Personen Platz fanden. Abgerundet wurde der Stand durch die große Kaffee- und Snackbar in der Mitte des Standes, wo sich die Besucher entspannen konnten.
Standfläche und Gegebenheiten
- Kind + Jugend
- Köln
- Halle 10.02
- Standnr. A040
- Inselstand
- Standabmessungen: 15m x 20m
- Standfläche: 300 m²
Über Ergobaby
Die Ergobaby Europe GmbH ist ein 2003 gegründetes Tochterunternehmen von ERGO Baby Carrier, Inc. Mit Hauptsitz in Los Angeles. Das Unternehmen hat es sich zur Aufgabe gemacht, mit intelligenten, ergonomischen Lösungen die Bindung zwischen Eltern und Babys zu fördern. Marketing und Vertrieb der Produkte in Europa, dem Mittleren Osten und Afrika werden von Deutschland aus gesteuert. Das beste verkaufte Produkt ist die Komforttrage Ergobaby, die derzeit in mehr als 50 Ländern erhältlich ist. Besonders wichtig ist es dem Unternehmen, bei der Herstellung auf natürliche Materialen zurückzugreifen. Diese Philosophie spiegelt sich auch im Logo wieder, das eine Nautilus Muschel darstellt.
Die Kind + Jugend
Die Kind + Jugend-Messe findet jedes Jahr statt und ist die internationale Leitmesse für Baby- und Kinderhartware, Spielwaren sowie Kinderbekleidung. Rund 1200 Unternehmen stellen über drei Tage ihre Produkte aus, von Kinderwagen und Tragekonstruktionen zu Mode für Kinder und Mütter bis hin zu Spielwaren und Schulbedarf. Die nebenbei stattfindenden Events und Kongresse können von den Besuchern genutzt werden, um sich auszutauschen und zu diskutieren. Im Rahmen der Veranstaltung findet ein Wettbewerb für junge Designer statt und der Gewinner erhält den „Kids Design Award“. Ausschlaggebend für den Gewinn ist es, einen Artikel rund um das Thema Baby und Kleinkind zu entwerfen und erstellen, welcher sowohl praktisch als auch zukunftsweisend sein muss.












